Szczycieńska firma Novum odbuduje pasymską starówkę. To już pewne. We wtorek, 2 stycznia gmina Pasym podpisała umowę z wykonawcą. Inwestycja będzie kosztowała ponad 4 mln. 170 tys. zł.
Do ogłoszonego przez gminę przetargu stanęła tylko firma Novum. Otwarcie ofert nastąpiło w środę, 15 listopada. Umowę z wykonawcą podpisano jednak dopiero we wtorek, 2 stycznia. - Inwestycję oszacowaliśmy na około 4 miliony złotych – mówi burmistrz Pasymia Cezary Łachmański. - Niestety zaproponowana przez Novum cena przekraczała zarezerwowane w naszym budżecie pieniądze na ten cel. Musieliśmy mieć czas, aby zastanowić się, co dalej zrobić.
Więcej w czwartkowym, papierowym numerze „Tygodniku Szczytno”.
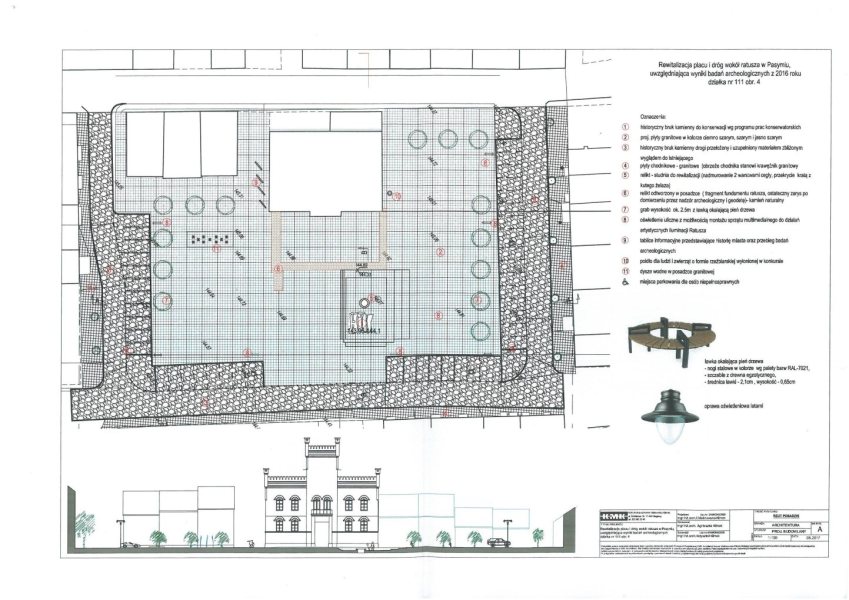
Tak wygląda projekt pasymskiego rynku.

Seba z osiedla
Super, przynajmniej hajsy z unii zostaną u przedsiębiorcy z powiatu :-)