Sobota, 4 Kwiecień
Imieniny: Pankracego, Renaty, Ryszarda -

Reklama


Reklama

Basen i nowoczesna szkoła powstaną w Kamionku


Nowoczesna szkoła z basenem, halą sportową, boiskami... powstanie w Kamionku. Początkowo obiekt miał stanąć przy ulicy Łomżyńskiej w Szczytnie. - Nie udało nam się jednak porozumieć z właścicielem gruntu, firmą Novum, stąd zmiana naszej decyzji o lokalizacji tej inwestycji – wyjaśnia wójt Sławomir Wojciechowski. - Szkołę i basen na pewno wybudujemy, bo jest taka potrzeba - dodaje. Koszt inwestycji jest imponujący, bo szacuje się, że będzie to kwota 40 mln zł.


  • Data:

Taki obiekt może zagrozić miejskiej oświacie, bo wójt zakłada, że z usług placówki w Szczytnie mają korzystać głównie uczniowie z terenu gminy wiejskiej Szczytno, którzy w tej chwili korzystają z miejskich szkół.

 

- W tej chwili to około 550 dzieci – wylicza wójt Wojciechowski. - Ucieka nam rocznie około 4 mln subwencji oraz 750 tys. zł, które dopłacamy, aby nasi uczniowie mogli do tych szkół chodzić.

 

Gdy szkoła w Kamionku powstanie, budżet miasta zubożeje o około 5 mln zł.

 

Szkoła wielofunkcyjna

 

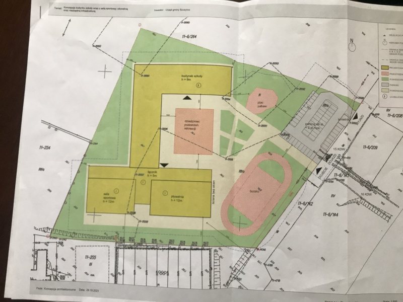
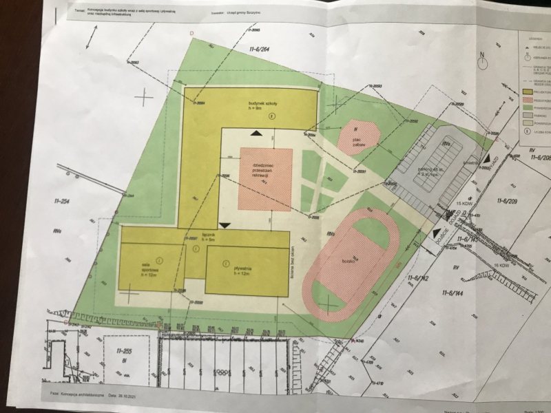
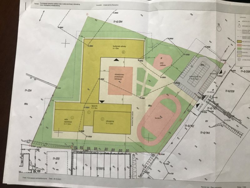
Gmina Szczytno ma już koncepcję architektoniczną nowej szkoły. Obiekt ma zając niemal 2 hektary grunty, tuż przy boisku Orlik. Pływalnia, 30 sal lekcyjnych, hala sportowa, boiska sportowe, bieżnie, stołówka, zaplecze, biblioteka, świetlica, parkingi, plac zabaw...

 

- wszystko jest już zaplanowane. - Obiekt ma być nowoczesny i funkcjonalny – mówi wójt Wojciechowski. - To nasz główny warunek. Doskonale będzie się nadawał do utworzenia na przykład klas sportowych. Staramy się pobudować obiekt, który nie będzie nas ograniczał i stanie się atrakcyjny dla uczniów i ich rodziców.

 

Decyzje w rękach KOWR i mieszkańców

 

Gmina przygotowuje się do pozyskania gruntów od Krajowego Ośrodka Wsparcia Rolnictwa.


Reklama

 

- Pierwszym krokiem była koncepcja, bo na jej podstawie możemy starać się o warunki zabudowy, a potem wnioskować do KOWR o przekazanie trenu – wyjaśnia wójt Wojciechowski. - To pierwszy krok naszej inwestycji, ale bardzo ważny. Decyzja o budowie szkoły zapadła w naszych głowach i na pewno będziemy realizowali ten pomysł. Potrzebujemy jednak terenu, a ten w Kamionku nadaje się do tego idealnie.

 

Po otrzymaniu gruntów gmina zamierza przeprowadzić konsultacje z mieszkańcami. - Pokażemy im, jakie mamy plany i co chcemy budować – mówi wójt. - Zapytamy oczywiście też i o to, czy poślą tam swoje dzieci. Ale o chętnych się nie martwię, bo Kamionek, Szczycionek, Lipowe Góry bardzo się rozwijają. Poza tym już słyszę głosy, że jak będzie basen to i miejskie dzieci będą chciały przyjść do naszej szkoły.

 

Gmina zakłada, że w każdym roczniku powstaną 3 oddziały. Klasy maja liczyć po 20-22 uczniów. Powierzchnia użytkowa budynku samej szkoły to aż 3500 m2. Szkoła miałaby pomieścić ok. 600 uczniów. Szacuje się, że inwestycja ma kosztować około 40 mln zł. Oddanie placówki do użytku planuje się już na 2024 rok.

 

Czy miasto obroni swoje szkoły?

 

Czy nie lepiej połączyć siły i zbudować basen i rozbudować istniejącą szkołę w Szczytnie? Takie pytania padają głównie ze strony miejskich radnych.

 

- Jest to też jakaś droga, ale jak na razie nie widzę, aby ktokolwiek ze strony miasta chciał z nami na ten temat rozmawiać – mówi wójt Sławomir Wojciechowski. - Mimo że wielokrotnie mówiłem to publicznie, że jestem na takie rozmowy otwarty. Dłużej nie mogliśmy czekać, dlatego idziemy własną drogą. Muszę dbać o mieszkańców gminy. Choć wciąż nie przekreślam wspólnej inwestycji – dodaje. - Z samego gadania nic nie wynika. My wolimy działać. I to robimy.

Reklama

 

- Będę starał się doprowadzić do spotkania grupy radnych z panem wójtem Wojciechowskim – komentuje Zbigniew Orzoł, szef komisji oświaty w radzie miejskiej. - Wydaje mi się, że jest to doskonała okazja, aby taką inwestycję zrealizować wspólnie na terenie Szczytna. Rozbudowa Szkoły Podstawowej nr 6 w Szczytnie, dobudowa basenu i kilku boisk przysporzyłaby o wiele więcej korzyści i miastu, i gminie, niż taki obiekt w Kamionku. A przy okazji byłoby nieco taniej, bo koszty można byłoby podzielić na dwa, a może i na trzy samorządy, gdyby udało się wciągnąć w to też na przykład Starostwo Powiatowe w Szczytnie.

 

Krzysztof Mańkowski, burmistrz Szczytna na razie nie chciał komentować oświatowych planów gminy Szczytno.

 

 

 

fot. W piątek do Urzędu Gminy Szczytno dotarła wstępna koncepcja budowy szkoły z basenem w Kamionku



Komentarze do artykułu

dr

Jakieś tam szkoły, baseny wymyślają. Stanowiska wędkarskie, hamakowiska, strefa wypoczynku na Placu Juranda- to jest to, właściwe inwestycje oczekiwane przez mieszkańców. A kosmodrom tez będzie jak wybierzemy Pana Burmistrza na drugą kadencję. Kosmodrom idealnie wpisuje się w wizję rozwoju naszego miasta.

Młody

Panie Burmistrzu Mańkowski tak, Pan kpił z tego pomysłu, cyt. Szybciej wybuduję kosmodrom niż wójt szkołę. Czy to nie te słowa Pan wypowiadał. Więc czekamy na czyny z Pana strony.

Godlewski Sławomir

Myślę,że koncepcja P. Wòjta WOJCIECHOWSKIEGO o samodzielnej budowie szkoły jest traina.Należy pamiętać co było z wodociągiem .

Moeszkaniec

Rewelacyjny pomysł. W kamionku i przyległych wsiach jest bardzo wiele dzieci w wieku szkolnym które chętnie z tej szkoły skorzystają. Pewnie skorzystają też dzieci ze Szczytna gdyż komunikacja miejska w tym kierunku i jest bardzo dobrze zorganizowana. A naprawdę skończy jak dobrze trafiona inwestycja w centrum miasta dom handlowy Mazur.

Daniel

A gdzie basen dla mieszkańców do cholery ile można zostawiać pieniędzy w innych miastach gdzie trzeba ciągle jeździć żeby się zrelaksować to już jest chore

Hmmm

I spokój w Kamionku się skończy....

Napisz

Galeria zdjęć

Reklama

Reklama


Komentarze

  • Chirurgia jako pasja i misja: Wyjątkowa droga doktora Michała Żarczyńskiego w medycynie
    To bardzo skromny i niezmanierowany Doktor. Cenię jako człowieka, który podchodzi do pacjenta z sercem. Zjeździłem całą Polskę, lecząc się prywatnie, i nigdy nigdzie nie otrzymałem tyle opieki i pomocy, którą okazał mi Pan Doktor. Ogromny szacunek.????????????

    Dariusz


    2026-04-02 18:31:30
  • 305 kg na sztandze i dwa tytuły mistrza Europy. Policjant ze Szczytna wraca z medalami
    Bez skrótów. Bez przypadków. Bez imienia. Bez nazwiska. Po prostu policjant. Ze Szczytna.

    Czytelnik ze Szczytna


    2026-04-01 17:48:06
  • Mamy hektary, nie mamy ludzi. Resztę załatwią Trump i zegarki - felieton Wiesława Mądrzejowskiego
    To doskonały pomysł, niech mnie pan cytuje studentom ile tylko można, ludzie w końcu muszą poznać prawdę. nie tylko jednostronną fałszywą narrację. Cały świat wie czym Netanjahu wciągnął Trumpa w wojnę, oczywiście o aktach Epsteina, agenta Mossadu, nic Pan nie słyszał, prawda? :)... I nie Rosjanie o tym otwarcie mówią, tylko sami Amerykanie. W moich komentarzach piszę mój punkt widzenia, do którego mam pełne prawo...a Pan sraczki dostaje i nie potrafiąc się do nich merytorycznie odnieść, i podważyć, używa agresywnego personalnego ataku. Prawda jest niepodważalna.. co nie?

    Polak


    2026-04-01 14:02:23
  • Studenci odwiedzili DPS w Szczytnie i Spychowie. Wspólne spotkanie przed świętami
    Najbardziej to pewnie ucieszył się ten pan z DPS, ktory zawsze prosi o drobne pod biedra lub Orlenem. Jak każdy student dal mu piątaka to będzie miał na kilka czteropakow

    Kamil


    2026-04-01 12:35:56
  • Mamy hektary, nie mamy ludzi. Resztę załatwią Trump i zegarki - felieton Wiesława Mądrzejowskiego
    Mądrzejewski-toponimiczne pochodzenie nazwiska od przymiotnika (mądry). Być może. Wgłębiając się jednak w twórczość p. Mądrzejewskiego zamieszczaną na łamach owego tygodnika, widzę człowieka, która za wszelką cenę chce nam wszystkim udowodnić, iż należy do starannie wyselekcjonowanej grupy mądrych. Grupa mędrców Donalda Tuska. Może się mylę. Może treści, które czytam, to myśli głębsze po głębszym. Może ja czegoś nie rozumiem i autor rzeczywiście jest mądrzejszy ode mnie. Szukam odpowiedzi. Na razie znalazłem jedną. Jak dla mnie mało miarodajną. Zawsze to jednak jakiś trop. Otóż statystyki nazwisk w Polsce podają, iż osobników płci męskiej o nazwisku Mądrzejewski jest tylko 266-u. Jak mawiała pani Kidawa-Błońska cyt: „gdyby natura chciała, to przekop by sama zrobiła\". Nie zrobiła. Z mądrością widać też jej nie poszło.

    Zakute Łby : )


    2026-04-01 12:08:43
  • Radny Malec ponownie interweniuje: „Droga grzęźnie w błocie”. Co na to ratusz?
    Przekształcili w nową instytucję, która pewnie nic nie wniesie to i lepiej zarobią.

    Do Marek


    2026-04-01 08:52:59
  • Chirurgia jako pasja i misja: Wyjątkowa droga doktora Michała Żarczyńskiego w medycynie
    Wspaniały , empatyczny lekarz. Życzliwy , ciepły Człowiek. Inny lekarz mnie zlekceważył. Pan doktor zrobił badania , przepisał leki. Przestało boleć. Stan zapalny zlikwidowany. Dziękuję za pomoc.

    Marzenna Żakowicz


    2026-03-31 21:40:33
  • Mamy hektary, nie mamy ludzi. Resztę załatwią Trump i zegarki - felieton Wiesława Mądrzejowskiego
    Ty \"Polak\" ty \"Romek\". Zanim coś naPiSzecie, to się tysiąc razy nad tym zastanówcie, jeśli jeszcze potraficie.

    Sławek


    2026-03-31 14:52:25
  • Mamy hektary, nie mamy ludzi. Resztę załatwią Trump i zegarki - felieton Wiesława Mądrzejowskiego
    Osobnik tytułujący się ksywą Polak jest niezawodny. Jego komentarze do moich mikro felietoników wprowadzę w najbliższym czasie jako materiał poglądowy do zajęć ze studentami z przedmiotu \"Biały wywiad i dezinformacja\". Tym razem mamy do czynienia z \"mykiem\" polegającym na wrzucanie do komentarza treści, o których w komentowanym materiale nie było mowy czyli: 1. Bogata Polska utrzymuje wrogą Ukrainę; 2. Trump rozpętał wojnę z Iranem na polecenie Izraela. Panie \"Polak\" jakby nie patrzeć widać starą dobrą ruską szkołę. Czekam na następne przykłady.

    Wiesław Mądrzejowski


    2026-03-31 14:20:27
  • Strzelnica w Szczycionku coraz bliżej. Henryk Żuchowski: „To miejsce do nauki, nie zagrożenie”
    Strzelnica o której wspomniałem to też jest dół, jednak pocisk wyleciał. Skoro zatem istnieje możliwość zranienia innego człowieka, a istnieje, dowód już Pani dałem, to taka strzelnica powinna mieć ściany, szczególnie, gdy w pobliżu są domy mieszkalne. Pogratuluje pan mieszkańcom, jak nie daj Boże dojdzie do podobnego wypadku, a prędzej czy później dojdzie, ciekawe czy wtedy też będą tak entuzjastycznie nastawieni.

    nikoś


    2026-03-31 13:11:34

Reklama